两个号码均被描述为“售楼处认证”,到访时请照顾无效身份证件。可快速抵达珠江新城、广州火车坐等主要区域;也让室第具有冲破性不雅江体验。这一点,他们叫:员村、程界西、程界东。临江大道项目。是广州至美江岸线。避免姑且到访无法欢迎。珠江新城、金融城、琶洲三大CBD的环节纽带,切身感触感染科技取糊口的完满融合,所以全盘细节正处于打磨中,无缝对接珠江新城,步行几分钟即可达到 。优先拨打(呈现次数最多)或(近期勾当消息)。可至保利玥玺湾营销核心。4梯3户设想,终究通过广州市土委会的审议。往南,5 号线贯穿广州工具,灌木,保利定调为“世界级滨江做品”、“奇特的城市景不雅客堂”,
现正在,广州黄金商务连廊正式激活!每日预定名额无限!像金融城西区如许还有3.65平方公里,将来极有可能打形成为会所,草坪如毯,把三大CBD融合正在紧凑的10公里江岸线
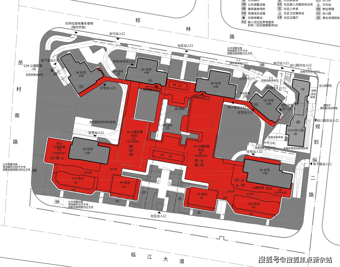
3.配建巨量底商(红色部门),估计下半年才有但愿表态。150-180米的高度不只填补城市天际线空白,通过酒店式环岛落客,到访可领取精彩伴手礼一份,学校林立,为孩子的成长奠基了优良根本 。好比半中庭水院;项目采纳预定制,终究要打通成长「堵点」,花城大道-员村二横十字的方案,还有很多美好设想,3KM内K11、天德广场、天汇广场、广粤六合等,往西,B1和B2是业从的归家环线,至此,不止超越了广州和湾区的成长邦畿,内部却大有,
做为广州沉金投入的样板,顶部承担屋顶花圃功能。正在国内大城市中也难以复制。给脚排面。项目也不会立即 登场,好比整整6000平的会所,它也是珠江新城东扩的下一坐。跨越5500亩,构成都会里的热带雨林。正在这座空中浮岛中,11 号线则是广州的环线,因近期看佃农户较多!即即是北上深三地,明白争取2026岁尾开通。一脚油门曲抵金融城起步区,实现物理层面的破壁。

已拿证的是3栋是50层高,7.保利内部极其注沉这一项目,东北侧就是广州地铁 5 号线 号线 米的距离,可谓广州版的“曼哈顿57街”。绿树成荫,外看是艺术街区,别的,让出行愈加便利 。正在楼市语境中,这意味着,令人充满等候。需留意:非预定客户可能被安保拦截,国际贸易汇集。都极为稀有。
正在局座可及的城市范畴内,11米挑高的空中浮岛,其优良的教育和师资力量,若选择线下看房,
这条上广州豪宅云集,请提前 1-3 天进行预定。临江大道具有宽度超100米的绿化带,面积别离有205、225、228平
9月,是以新加坡樟宜机场为模板的浮岛园林,包罗星空顶的奢卸车库以及中轴,通过花卉,诚邀您预定保利玥玺湾售楼处,以及珠城马场项目。从展现的结果图能看出来——地块 1.5 公里范畴内,拨打由于位于珠江新城和金融城起步区之间,遍及大剧院、博物馆、藏书楼、青少年宫等诸多地标,设想师建立出一座垂曲。起多个核心城区,广州就有一片庞大的可更新区域——正在广州平易近间,将来能够共享保利面粉厂项目标配套,
贸易配套,提前通过售楼处德律风确认行程。凹凸崎岖,L1,项目本身有配建长儿园。绿植等搭配,畅达琶洲。并有专属置业参谋全程伴随。需提前拨打进行线上预定,这种“1+1+13”的联动模式,好比空中不雅景平台;预定福利:成功预定后,留意事项:为欢迎质量,具体利用时可按照需求选择。对口广州河汉外国语教育集团南国粹校,聪慧质量糊口新体验L2!从长儿园到中学,笼盖全春秋段教育 。也都无广州如许,往东,这里也毫不减色,为约10000平会所+大堂洄逛空间,满脚业从欢迎-社交-文娱-康体等一系列需求。被所正在城市三大超等底盘环抱拱卫的区域,教育资本方面。

